本柔性填埋场采用柔性防渗、开挖深坑及修建围堤结合的方式形成填埋库区的填埋方案。
经过稳定化/固化处理的废物通过自卸汽车送至填埋作业区并在库区内养护。按照《危险废物填埋污染控制标准》(GB18598-2019)的要求,废物堆填表面坡度一般为1:3,边坡浆砌块石锚固,而对平台的设置未作规定,但要求封场植被恢复层的坡度不应超过33%,在坡度超过10%的地方须建造水平台阶;坡度小于20%时,标高每升高3m建造一个台阶;坡度大于20%时,标高每升高2m,建造一个台阶。台阶应有足够的宽度和坡度,并能经受暴雨的冲刷。一般水土保持要求平台宽度不小于1m。填埋工艺设计与封场及其封场植被结合一起考虑。

作业方式选择
填埋作业有“堆坡法”和“填坑法”两种可供选择。
采用“堆坡法”进行填埋作业时,使用推土机可取得更好的压实效果;摊铺作业更容易控制;可有效避免废物散落现象。缺点是推土机工作量大,所有废物须自下向上堆起,作业负荷高。“填坑法”作业自上而下进行,推土机作业负荷较低,但对摊铺作业控制要求较高,若摊铺作业控制不好,易造成废物散落。
在填埋作业过程中,可根据实际情况灵活选择填埋作业方式。


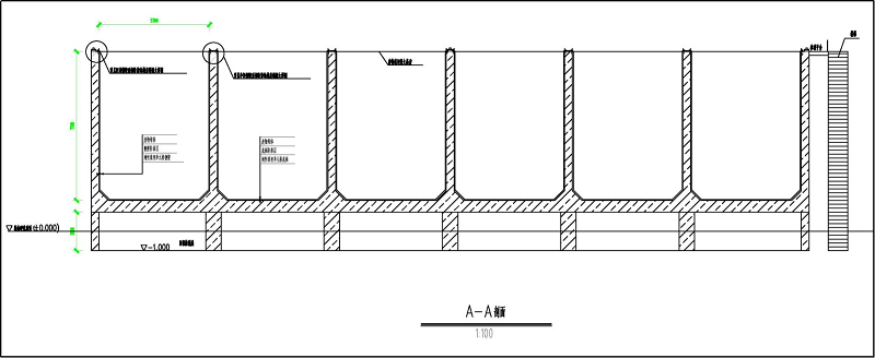
本项目刚性填埋场剖面图
填埋现场作业
1、预处理
本项目安全填埋场填埋处置密封包装的危险废物,拒绝接收密封包装不合格的危险废物。因此,储运过程中导致包装破损的危险废物,进入预处理车间重新进行包装,再进行安全填埋。本项目刚性填埋场不设置单独的预处理车间,利用焚烧预处理车间。
2、填埋作业
单元池上方设置雨棚及吊装机械;经鉴别符合入场要求的填埋物由运输车辆运至场内,经计量后通过环场作业道路进入填埋区,填埋物由汽车吊吊至单元池上方卸料平台,然后通过雨棚上安装的电动单梁吊车将卸料平台的填埋物填埋至单元池。汽车吊车随着单元池填埋单元的变化而移动,填埋物分层垒实。
进行作业的单元格需用防雨棚覆盖,采用临时固定,雨天不进行吊装作业,每天作业时先将防雨棚移到下一单元格,作业完成后需将防雨棚复位。待作业单元格填充毕后即进行单元格封场,进行下一单元格填充,填充前先进行单元格内清理,清理完毕后防雨棚归位其上。
